
△ 实验室概览
实验室内部空间沿线性排布,总体呈围廊式。一系列实验与办公空间由透明的玻璃隔墙细分出来,这种设置不仅使不同区域之间保持独立,同时又保证了室内的最大可见性,使整个空间序列一目了然。

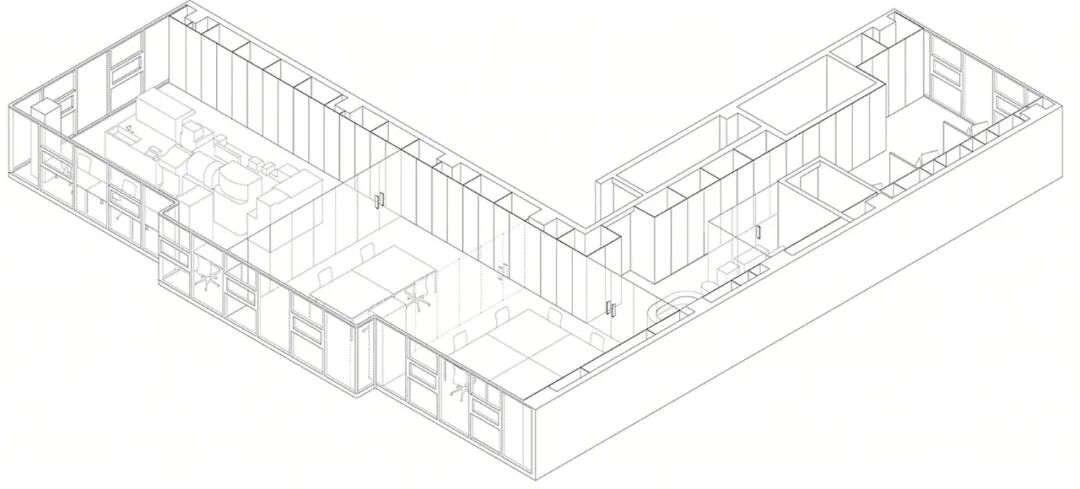
△ 轴测图

△ 弧形接待台与长凳形成入口区域

△ 服务器设备室透过全高的玻璃墙暴露在人们的视野中

△ 由接待区看会议室

△ 由接待区进入后,空间顺序依次为会议室、办公室、实验室

△ 会议室 – 大面积的玻璃提供了极佳的自然采光与景观视野

△ 必要的建筑设备隐藏在橱柜墙中

△ 由办公区看实验操作区


△ 会议室与工作区细部
实验室操作区围绕一个独立的中岛组织,中岛集成了各种专业检测仪器,分析工作则在围绕中岛周围的回廊式空间中进行。中岛上专业仪器的摆放顺序极为考究,严谨地遵循了检测实验流程,以确保工作人员能够在实验室内进行有效的移动,避免路线交叉。由于所有的实验室设备都集成在中岛上,因此,实验操作区的立面与边缘空间得以解放出来,大面积的玻璃将充足的自然光线引入实验室,同时为工作人员提供了广阔的城市视野。

△ 实验区与工作区由玻璃墙分隔

△ 实验区围绕集成了所有专业设备的中岛组织

△ 专业设备中岛

△ 分析工作在中岛周围的回廊中进行
实验室照明工作通常包括常规照明系统、应急照明系统、值班照明系统和隔离照明系统。不同实验室功能照明有不同的差异,常规照明系统通常采用普通照明(300LX用于清洁实验室,200LX用于常规实验室桌面照明)、局部照明和混合照明。用于照明的光源不会干扰分析设备。项目中天花板上的LED灯带在对自然光起到补充作用外,还将所有空间联系起来,弯曲的形态加强了空间的连续性,并为实验室的专业工作提供了均匀的照明。
白色贯穿了整个项目空间,包括:高光泽的树脂地板、白色天花板、涂漆内置家具,这些白色元素使自然采光的效果更加明显。此外,空间中现有的柱子都被通高的镜面遮盖起来,进一步增强了室内日光的反射。

△ 可移动模块化工作桌

△ 纯白色的空间增强了自然光线的反射

△ 走廊

△ 卫生间

△ 平面图