
基于项目自身的原始建筑条件和空间需求,前期通过对空间功能、员工行动路径和协作模式进行了大量实地调研与数据模型分析,提出并落地实施"模块式办公"的空间策略。这一策略十分精准地覆盖了团队现阶段的多维需求,最大化地利用有限的物理空间,有效促进员工之间的协作和交流,同时也能满足日常接待客户和洽谈合作的商务需求,形成一个高效循环的能量场。


BOX「盒子」
强有力的功能纽带

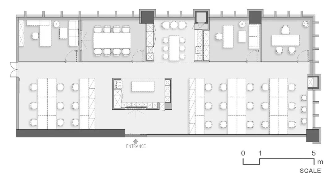
主入口处于相对隐蔽,内部空间呈长条形状。经过设计团队的多次实地考察调研和整个空间的平面规划深入分析,对本项目进行大刀阔斧的空间改造。主入口和逃生门的位置互相对调,主入口移到了更为显眼的位置,方便客户来访与企业门头的对外宣传展示。






现代办公
简约高效的能量场

公共办公区域采用开放式的格局,分布逻辑十分清晰,去除了工位之间的屏风,在靠近前厅的区域设置了少量低矮的格挡,与前厅区域形成半区隔,提高了员工之间日常工作交流的便捷性。





在开放办公区域,大面积采用环保的微水泥涂料搭配素色地毯,简单细腻;墙面设置了一处可反复书写擦拭的环保工作面板,便于日常设计小组进行头脑风暴或讨论方案使用。办公空间的材料选择以吸音、环保和健康为前提,黑白灰三色的比例互为衬托,相得益彰,相对克制的设计更能释放出安静的空间底色,创造出自在栖游的现代简约办公新体验。

独立的会议室明亮通透,完善配置了专业的多媒体设备,并精心增设了吸音地毯和聚酯纤维吸音板,减弱声音的对外传播,满足日常开会汇报等模式亦不妨碍公共办公区的日常工作。

公共办公区靠窗的位置视野极佳,片片黛绿无限延伸,令人心旷神怡。美好的景观应该是共享的,于是特别设计为一个多功能的高吧台,令人自然而然地沉浸于城市风光中,模糊了内外界限,自由轻松,营造快乐工作的恣意时光。





自然舒适
光影律动的栖息地
茶歇区位于整个办公空间的中间位置,以自然温暖的原木色为主调,与办公区的黑白形成鲜明的对比。注重细节,通过多样化的材质来体现空间的品质感,主要材质采用抗污和环保兼备的自沉式LVT搭配桦木海洋板,功能与美观兼备,为员工打造更为友好的办公环境。






独立茶室,可用于日常接待客户或休闲独处。空间延续了茶歇区的木质调性,搭配藤编的家具和简约设计感的灯具,自然明亮且舒适愉悦,设计特意将茶桌的高度降低了5公分,以更符合泡茶者的操作习惯,阵阵茶香氤氲,静谧清幽,增强了人与空间之间宁静的对话。




SVP独立办公室,以现代极简黑白为主,满足独立办公的日常需求,明净的玻璃窗带来充足的阳光浸润,节约能源绿色环保,结合注重人体健康的细节设计,缓解了创意工作的高强度长期输出对身体带来的疲惫感,个性化的配置以使用者的需求为主:采用冲孔石膏板搭配可升降座椅,白色极简艺术收纳边柜,配备专属的衣橱...设计的细节将空间提升,交织的光影,引发更为多元广阔的设计探索。





内容源于网络/仅供交流学习/如有侵权请联系处理
