恭祝
邦通建设管理新公司装修工程
开工大吉

为适应邦通建设管理快速发展的客观要求,公司于苏州市步步高·稻谷互联网产业园1期为新公司购置办公室。2023年11月8日上午11:18分,邦通建设管理新公司装修工程仪式在产业园内4号楼隆重举行!邦通建设管理董事长、总经理携公司各部门经理及重要代表,共同见证新公司的全新开启。





苏州邦通建设管理咨询有限公司是一家具备建筑企业资质(建筑装修装饰工程专业承包二级、防水防腐保温工程专业承包二级)、工程设计资质(工程设计建筑装饰工程专项乙级)的企业空间设计与施工一体化公司。主要针对企业的商务办公、生产车间、研发实验、企业展厅、企业会所等领域。
公司自成立以来,已为诸多知名上市企业服务,同时取得了令人瞩目的成绩并履获国际专业设计荣誉奖项,如2022美国MUSE设计大奖,2023全球设计奖-室内设计奖。

△ 公司荣誉
△ 新办公室地址 | 苏州市步步高稻谷互联网产业园1期
△ 新办公室窗外视野 | 紧邻太湖
△ 新办公室场地实况图

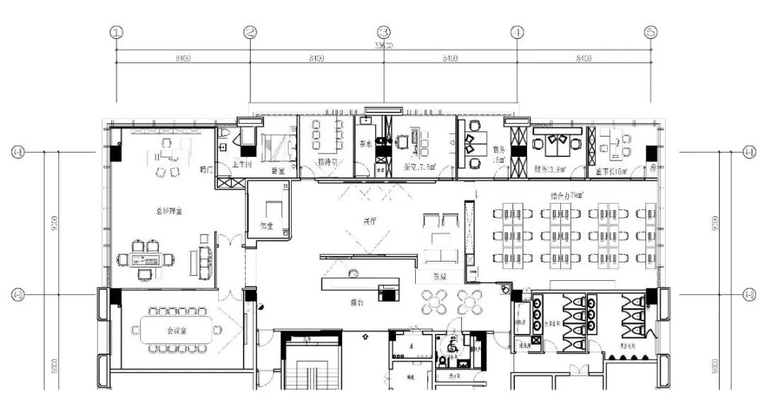
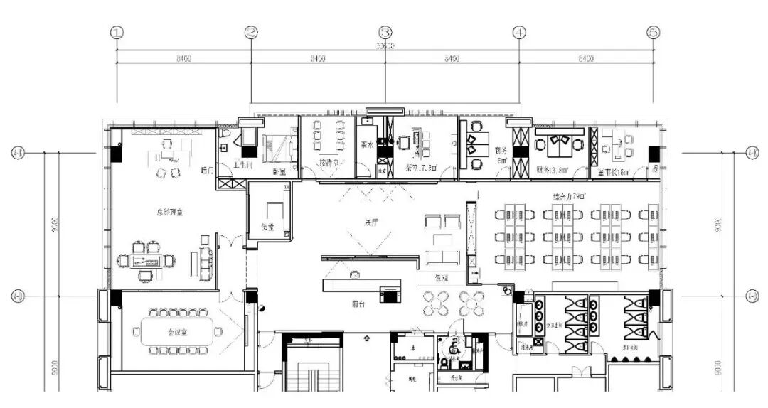
△ 新办公室平面布置图
在美好祝福声中,仪式进行到金锤定音环节。邦通建设管理董事长及总经理为新公司敲响了装修开工的序章。一锤开工大吉,二锤顺顺利利,三锤财源广进,喜锤落地,开工仪式圆满完成!
时间是变化的标尺,空间是更迭的参照,时空为证,未来,邦通建设管理将锲而不舍地进行产品研发与提升,并将创新渗入到企业管理的各个细胞中,以专业的服务为各行各业的企业赋能。



