△ 办公室一览这家国际化公司拥有超过150名员工,为诸多食品公司的全方位IT合伙人,并且提供大量ERP相关服务。由于公司要举办面向客户的培训课程以及内部的培训项目,设计需要包含许多会议空间和展示室,并且将这些功能和办公区域连接在一起,创造一个开放的办公环境。
△ 入口宽敞的中庭,设有招待区供人交流
△ 从二楼看向入口接待区
在2500平米的工作楼层中,在地面上大胆地使用蓝色和绿色图案区分出不同的区域,并选择相应颜色和材料的家具和吸音墙板与之搭配。
△ 不同的工作区域以蓝色或绿色的地面图案划分
△ 不同的工作区域以蓝色或绿色的地面图案划分
△ 家具及墙面的颜色和地面相呼应
△ 家具及墙面的颜色和地面相呼应
△ 家具及墙面的颜色和地面相呼应
设计师采用软性吸音墙划分空间,创造出舒适的声学环境。墙面上打印有大幅展示农业元素的照片,与食品工业相呼应。色彩丰富的图案和白色的金属天花以及白板装饰的墙面形成鲜明对比。
△ 采用农业照片的墙面
△ 采用农业照片的墙面
在每个楼层的中部都设有一个中央公共区域,包含咖啡吧,食品柜,打印间和会议区等功能,可以促进员工之间的交流。一间蓝色调的小餐厅不露声色地融合在办公环境之中,可供碰头会使用。入口处有一个巨大的两层通高中庭,上方悬有植物,二层的餐厅便位于中庭边。
△ 食品室
业主十分关心可持续性和员工福利,因此设计师采用最新的照明和环境控制技术将办公室的舒适性最大化。整个办公空间中分布着九面巨大的种植墙,其中上千株植物不停提供着氧气和水分,提升空气质量的同时起到了极好的隔音效果。这些墙面同样反映了设计的主题,给人以健康,新鲜和自然的直观体验。
△ 种植墙提高环境质量,给人以自然的感受
△ 种植墙提高环境质量,给人以自然的感受

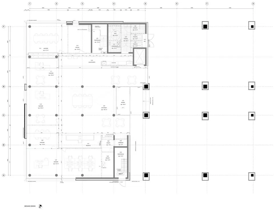
△ 一层平面图

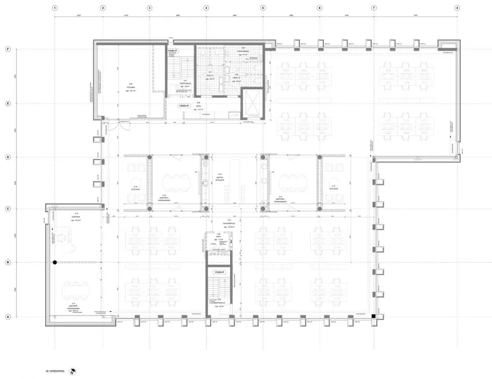
△ 二层平面图
内容源于网络/仅供交流学习/如有侵权请联系处理
