项目面临着两个关键挑战:1.如何最大限度地减少因拆除所产生的废料(以及由此产生的排放)。2. 如何开发一个有意义的体系结构来容纳生产设施,并优化其功能。
▼项目概览

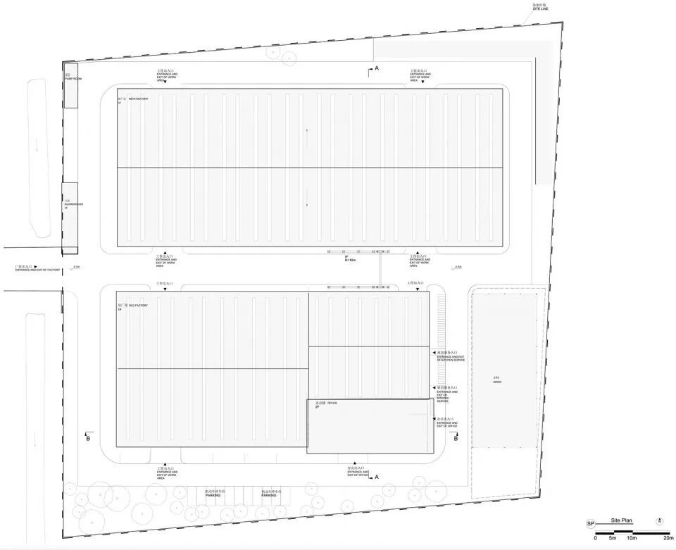
该研发生产基地项目位于中国江苏省昆山市,其中包括两座老厂房的改造翻新,总建筑面积为8000平方米。建筑厂房主要容纳客户的幕墙系统的生产流水线,为办公室和员工设施提供支持。该地块包含了两座现存的建筑,一座混凝土框架的工厂和一栋两层的办公楼。这些建筑的结构虽然完好,但并不足以容纳客户的生产线。在保留原有房屋构架的同时,也为其设计了一个全新的外观。工厂以及办公楼通过展示的方式将他们品牌的内涵传达给来访者。
▼工厂外立面

波纹不锈钢板,炭灰色铝板以及玻璃为主要的建筑外立面材质,通过这样的排布方式,将室外的光源通过建筑外墙的玻璃以及工厂天窗反射到室内空间,让整体效果更加充满韵律以及活力。
▼采用波纹不锈钢板、炭灰色铝板以及玻璃为工厂外立面的主要材质

▼波纹不锈钢板、炭灰色铝板和玻璃构成的工厂外立面

▼工厂室内,室外的光源通过建筑外墙的玻璃以及工厂天窗反射到室内空间


在设计过程中,将工厂内部的隔墙拆除,其余的建筑进行改造:将建筑外立面重新翻新,替换了屋顶的造型。办公楼的总面积为900平方米,分为两层楼,建筑外立面采用了通高的玻璃幕墙,去营造一个明亮舒适的室内环境,尽可能减少白天的用电量。幕墙侧边的冲孔板,既不影响建筑外观的也保证了室内外的空气流通。
▼改造过程

▼办公楼入口,建筑外立面采用了通高的玻璃幕墙


▼办公楼外观局部

▼办公楼外观细节

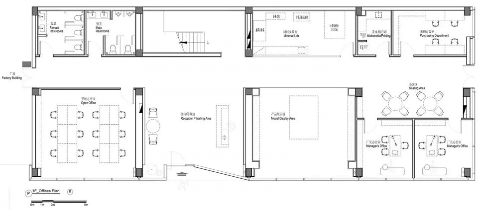
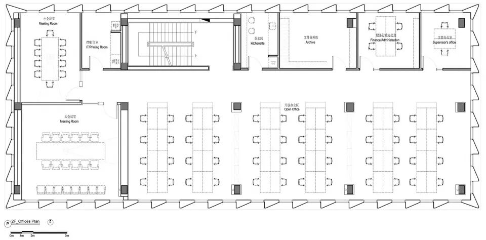
办公楼区域则需要更多的光源以及更为合理的布局。室内的墙面和建筑外立面都进行了翻新,保留主体结构和楼梯。室内空间的设计延续了建筑的风格,墙壁的设计采用了垂直的元素以表达韵律。不锈钢和泡沫铝板营造一种精密的感觉。黑色的金属细节为空间增加锐度与清晰度。一层主要分为入口大厅,材料实验室,全不锈钢材质展示区以及厂长办公室。二层则是大型的开放式办公空间以及会议室。
▼一层入口大厅,不锈钢和泡沫铝板营造一种精密的感觉

▼一层走廊,黑色的金属细节为空间增加锐度与清晰度

▼二层的开放式办公室

▼二层的会议室

▼楼梯

▼办公楼夜景外观

▼总平面图

▼办公楼一层平面图

▼办公楼二层平面图

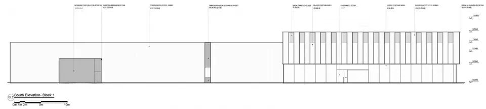
▼1号厂房北立面图

▼1号厂房南立面图

▼1号厂房东立面图

▼1号厂房西立面图

▼2号厂房南立面图

▼剖面A-A

▼剖面B-B

部分内容源于网络/仅供交流学习/如有侵权请联系处理
END.
