
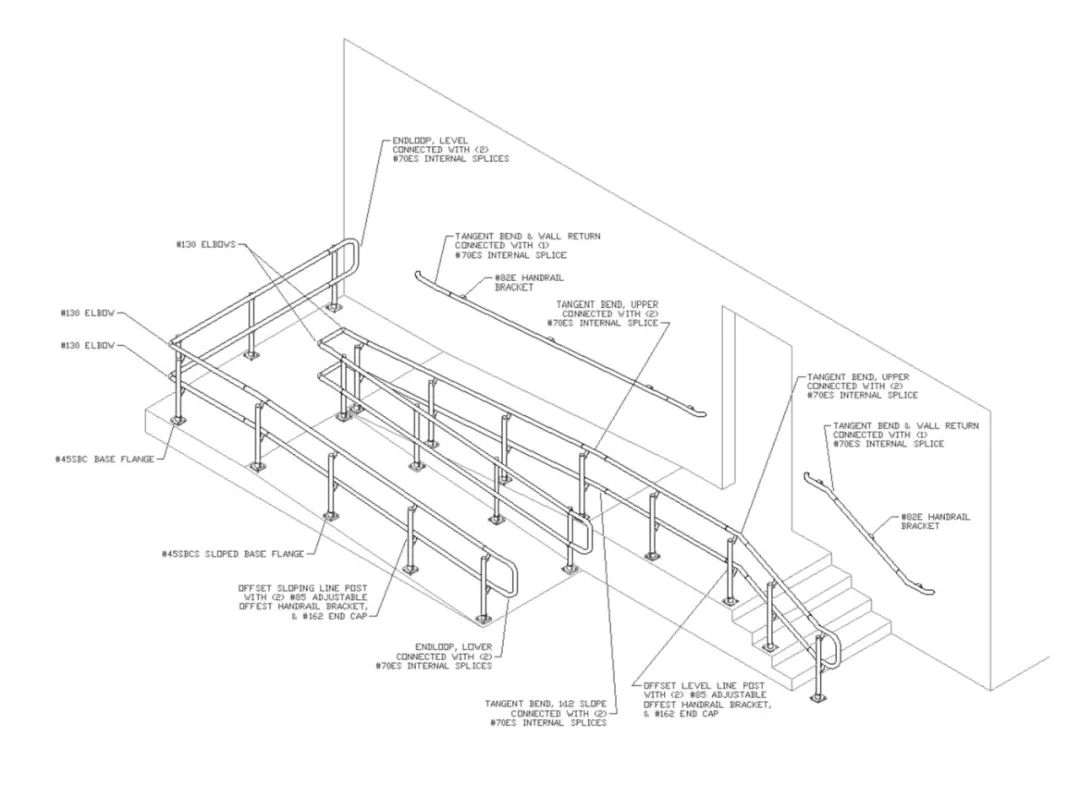
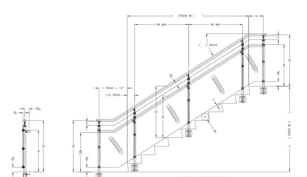
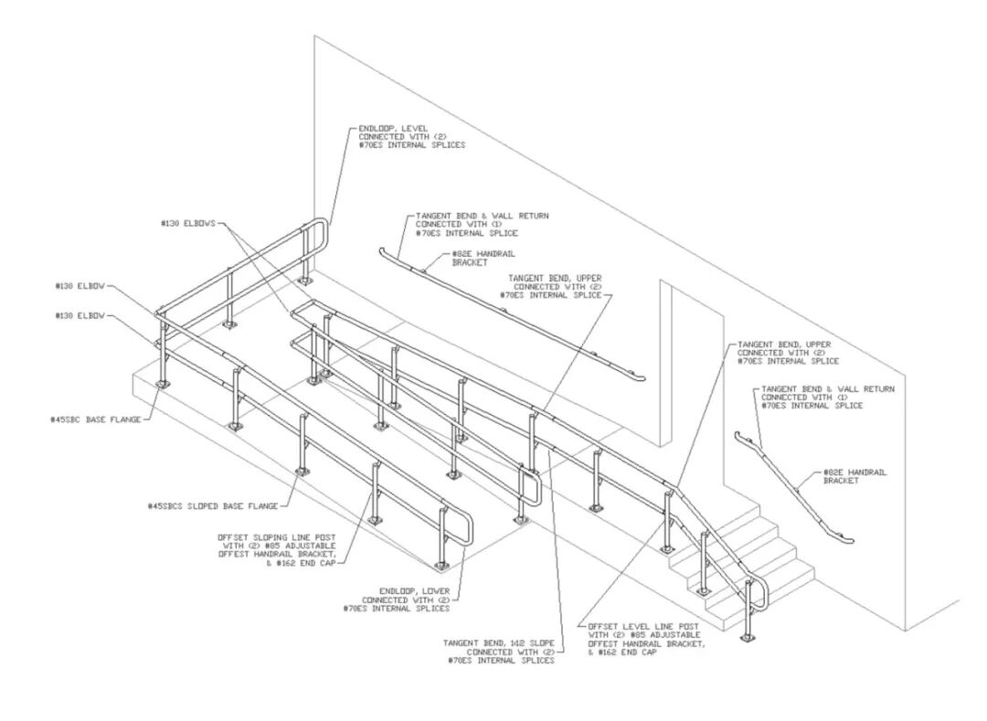
01.栏杆的结构及安装
在室内设计中栏杆作为空间中的重要元素为用户提供安全保护。但是我们鲜少会去沉思他们的设计,或者花很多心思去思考他们是如何运作的。基本上,栏杆由四个主要部分构成:扶手、立柱、底轨和横档,并却必须坚固耐用。栏杆的外部框架尤为重要,它作为主要的结构锚点提供支撑,可以包括扶手、内部面板及其他配件。借助当今多样化的材料选择,栏杆可以运用混合材料进行建造,甚至可以调整不同的透明性以适应不同的预算要求。
02. 不同材料的栏杆
铝材
铝材质地轻巧、结实耐用且耐腐蚀,是栏杆结构材料的常见选择。这种材料还适用于追求成本效益的栏杆,同时易于安装。


不锈钢材质
不锈钢材料比铝材更加坚固、韧性更高,但也更加昂贵。同时,不锈钢需要更加细致的连接处理,并能体现更明显的材质纹理。

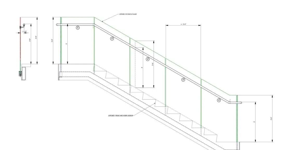
结构玻璃
结构玻璃由厚钢化玻璃面板制成,附带铝制或不锈钢配件。在顶部,扶手可选择不同材料、饰面的圆形或U形构件,木制扶手也是一种常见的选择。这种玻璃可以使用螺丝进行垂直固定,形成一种类似“玻璃墙体”的印象。


03.不同材料的栏板构建
填充板材会受到特定因素的影响,具体如下描述。某些情况下,扶手下方的空间可能是完全中空的,例如看台的楼梯或是靠近墙壁的位置。不透明的程度也是另一个重要因素,每种材料都需要提供一定的安全性能。
竖向栏杆
这是一种非常传统的选择,每一块竖直构件彼此间隔均匀,创造出一种独特的韵律,让人联想起传统的栅栏形式。对于任何项目来说,这都是一种经济与美观兼顾的解决方案。


玻璃
玻璃特别适用于对透明度和精致度提出较高要求的项目。比较常用的有3/8英寸厚的钢化单片玻璃,当然也有其他选择。某些地区的规范要求对玻璃进行层压处理,这样可以在破裂情况下提供更高的安全性。玻璃材料也能提供多种颜色选择——透明的、染色的或是哑光的,还能够装饰特定的艺术图案。


金属丝网
金属丝网兼具半透明性和经济性,2×2英寸的正方网格是最常用的,也可以选择其他尺寸和方向的网格。通常材料会选用碳钢与粉末涂层铝的结合。
穿孔材料
穿孔材料也具有半透明性,同时是一种更加紧密的方案。有多种模式可供选择,一般来说,是由碳钢制成的,使用电子涂层或粉末涂层(铝)进行表面处理,最大开孔面积可达50%。


树脂材料
树脂板,通常指塑料,通常包括两种化学成分。一般来说,亚克力板硬度更高,但在防火性能上略低于PETG(聚乙烯)填充版。两者都比玻璃更贵,但只要安装在柱子或栏杆的正确位置,3/8英寸厚的树脂板材可以承受结构荷载。




部分内容源于网络/仅供交流学习/如有侵权请联系处理